Floor plan of the Hôtel de Ville, Paris
plans
/
PLAN | 281 | guggenheim museum bilbao | Frank Gehry | source
/
Plan [162]
Wright’s plan for the Willits House, Highland Park, Illinois
/
Schinkel’s reconstruction plan for the Laurentine villa in 1841, Ostia
/
amazing project in real life. decays into the surroundings, allows plants to grow over and around it, just beautiful.
Black, White & Grey Plans
[534]
110808 - Enric Miralles’ plan of the Cemetery at Igualada. My tutor, in talking about precision of drawing, wondered how specific Miralles had been about the placement of the sleepers inlaid within the floor. It would be hard to tell how exactly this was specified - but from the above drawing, it at least seems that they were placed in specific locations. Still - this discussion of intention and exactness has always bubbled in Miralles’ work - from the setting out of a croissant, he is acutely concerned with the absolute specification of an irregular curve, but in the Mercader’s apartment roughly laid patches of tile are left blank on the drawings. Maybe this juxtaposition in the plans is what gives each piece of the drawing it’s own feel and in the final buildings creates a tension between the elements. Precisely crude or crude precision.
/
Black, White & Grey Plans
[510]
Richmond | Cooke House | FRANK LLOYD WRIGHT
/
Black, White & Grey Plans
[441]
Plan of the Funerary Temple of Ramses III, c. 1200 B.C.
/
Black, White & Grey Plans
[422]
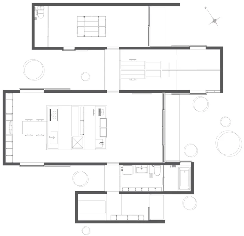
Kechum, Idaho, USA | Spur Lane House | SPG Architects
/
/
Black, White & Grey Plans
[151]
Stanley Tigerman, Private Residence, Illinois, 1988-1990
/
Black, White & Grey Plans
[337]
Moscow Region, Russia | Lakeside Spa and Boutique Hotel
McAdam Architects
/
Black, White & Grey Plans
[103]
Dubai | Burj Khalifa | SOM - Skidmore, Owings, & Merrill
/
/
/
Black, White & Grey Plans
[13]
Bellmere Public School, Toronto
(John Andrews, 1960s)
/
/
Black & White Plans
[704]
unknown | unknown | unknown
/
Black & White Plans
[678]
Fallingwater is constructed on three levels primarily of reinforced concrete, native sandstone and glass. Soaring cantilevered balconies are anchored in solid rock. Walls of glass form the south exposure, and a vertical shaft of mitered glass merges with stone and steel to overlook the stream.
/
Black & White Plans
[679]
Classic Prairie style home design by Frank Lloyd Wright in Chicago
/
Black & White Plans
[676]
Frank Loyd Wright home plans