DEAP

DEVOSS ENVIRONMENTAL ARCHITECTURE AND PLANNING

  • Architecture
    • Pioneertown - ADU - In Construction
    • Residential - Malibu House - In Progress
    • Residential - 2081 Sunset Plaza - Addition to Banta #1
    • Residential - Sherman Oaks - Thai-style Cabana
    • Residential - Berclair ADU
    • Residential - Morongo Valley - Paradise Cabin Addition
    • Hospitality - Tish Hot Spring Cabin
    • Burns Canyon Residence
    • Commercial - DPP Office - La Canada
    • Commercial - DPP Office - Pasadena
    • Commercial - DPP Office - Monrovia
    • Residential - Silver Lake Residence - IN PROGRESS
    • Residential - Crescent Drive Remodel
    • Residential - Sherman Oaks Remodel
    • Commercial - Venice - Deasy Penner Podley Office
    • Mixed Use - Echo Park 5-plex Renovation
    • Observatory - Water Canyon - In Progress
    • Residential - Sunset Plaza Houses - In Progress
    • Off Grid - Yucca Valley - Moonrise Canyon Addition - In Progress
    • Off Grid - Idaho Cabin (w NWL
    • Residential - Topanga House - In Progress
    • Residential - HiFi Revival - In Progress
    • Sherman Oaks - Roblar Remodel - In Progress
    • Residential - Beverly Hills House
    • Residential - Lookout Mountain Addition - In progress
    • Residential - Pasadena Addition - IN PROGRESS
    • Renovation Study - Mid Century Modern Pasadena House
    • Residential - Mt Washington Addition - In Progress
    • Cultural - Haiti Orphanage
    • Residential - Studio City Apartment Remodel
    • Residential - Hollywood Hills Landscape Plan - IN PROGRESS
    • Commercial - Silver Lake - Deasy Penner Office
    • Set Design - MineCon London 2015
  • Planning
    • Urban Design - Lincoln Heights
    • Transportation Planning - L.A.S.E.R.
    • Sustainable Planning - Malibu Lagoon (w NWL)
    • Global Environment Map
    • Sustainable Planning - Roma ex Urbis (w NWL)
    • Master Planning - LA World's Fair 2022
    • Master Planning - Melbourne Shopping Complex
    • + Real Estate Opportunities
    • YouVoteNow
    • USA Political Mapping
    • Los Angeles Resiliency
    • Los Angeles Resources
    • EPNC Homeless Assistance Services
    • Echo Park Future Planning
    • Arroyo Seco Confluence
    • Golf
  • Visualization
    • Commercial - All State
    • Set Illustration - Sonic
    • Set Illustration - Build.com Kitchen
    • Residential - Orange Grove Kitchen
    • Residential - Canongate
    • Residential - Mt. Washington Kitchen
    • Residential - Mt Washington Bathroom
    • Residential - Yucca Valley Moonrise
    • Set Illustration - Bathroom
    • Residential - Benedict Canyon
    • Residential - Sherman Oaks Addition - IN CONSTRUCTION
    • Residential - Idaho Cabin
    • Set Illustration - Apple
    • Set Illustration - Magnum
    • Set Design - Twix
    • Set Illustration - Jack in the Box
    • Set Illustration - Benjamin Moore Bounce House
    • Set Illustration - Target
    • Set Illustration - FIAT
    • Set Illustration - Activia
    • Set Illustration - Hormel
    • Set Illustration - Wells Fargo
    • Set Illustration - Virgin America
    • Set Design - Benjamin Moore Yoyo
    • Landscape - Haynes Backyard
    • Set Design - Mountain Dew
    • Set Illustration - Trollis
    • Set Illustration - Gatorade
    • Set Illustration - Dannon Kitchen
    • Hospitality - Yucca Valley - Canyoneer - In Progress
    • Landscape - Hancock Park
    • Multi Family - Studio City Apartment Interior
    • Residential - Westwanda Kitchen
    • Residential - Entenza House Addition
    • Set Illustration - Reese's
    • Set Illustration - Kay Jewelers
  • Services
  • Company
  • Blog
  • Contact
    • Pioneertown - ADU - In Construction
    • Residential - Malibu House - In Progress
    • Residential - 2081 Sunset Plaza - Addition to Banta #1
    • Residential - Sherman Oaks - Thai-style Cabana
    • Residential - Berclair ADU
    • Residential - Morongo Valley - Paradise Cabin Addition
    • Hospitality - Tish Hot Spring Cabin
    • Burns Canyon Residence
    • Commercial - DPP Office - La Canada
    • Commercial - DPP Office - Pasadena
    • Commercial - DPP Office - Monrovia
    • Residential - Silver Lake Residence - IN PROGRESS
    • Residential - Crescent Drive Remodel
    • Residential - Sherman Oaks Remodel
    • Commercial - Venice - Deasy Penner Podley Office
    • Mixed Use - Echo Park 5-plex Renovation
    • Observatory - Water Canyon - In Progress
    • Residential - Sunset Plaza Houses - In Progress
    • Off Grid - Yucca Valley - Moonrise Canyon Addition - In Progress
    • Off Grid - Idaho Cabin (w NWL
    • Residential - Topanga House - In Progress
    • Residential - HiFi Revival - In Progress
    • Sherman Oaks - Roblar Remodel - In Progress
    • Residential - Beverly Hills House
    • Residential - Lookout Mountain Addition - In progress
    • Residential - Pasadena Addition - IN PROGRESS
    • Renovation Study - Mid Century Modern Pasadena House
    • Residential - Mt Washington Addition - In Progress
    • Cultural - Haiti Orphanage
    • Residential - Studio City Apartment Remodel
    • Residential - Hollywood Hills Landscape Plan - IN PROGRESS
    • Commercial - Silver Lake - Deasy Penner Office
    • Set Design - MineCon London 2015
    • Urban Design - Lincoln Heights
    • Transportation Planning - L.A.S.E.R.
    • Sustainable Planning - Malibu Lagoon (w NWL)
    • Global Environment Map
    • Sustainable Planning - Roma ex Urbis (w NWL)
    • Master Planning - LA World's Fair 2022
    • Master Planning - Melbourne Shopping Complex
    • + Real Estate Opportunities
    • YouVoteNow
    • USA Political Mapping
    • Los Angeles Resiliency
    • Los Angeles Resources
    • EPNC Homeless Assistance Services
    • Echo Park Future Planning
    • Arroyo Seco Confluence
    • Golf
    • Commercial - All State
    • Set Illustration - Sonic
    • Set Illustration - Build.com Kitchen
    • Residential - Orange Grove Kitchen
    • Residential - Canongate
    • Residential - Mt. Washington Kitchen
    • Residential - Mt Washington Bathroom
    • Residential - Yucca Valley Moonrise
    • Set Illustration - Bathroom
    • Residential - Benedict Canyon
    • Residential - Sherman Oaks Addition - IN CONSTRUCTION
    • Residential - Idaho Cabin
    • Set Illustration - Apple
    • Set Illustration - Magnum
    • Set Design - Twix
    • Set Illustration - Jack in the Box
    • Set Illustration - Benjamin Moore Bounce House
    • Set Illustration - Target
    • Set Illustration - FIAT
    • Set Illustration - Activia
    • Set Illustration - Hormel
    • Set Illustration - Wells Fargo
    • Set Illustration - Virgin America
    • Set Design - Benjamin Moore Yoyo
    • Landscape - Haynes Backyard
    • Set Design - Mountain Dew
    • Set Illustration - Trollis
    • Set Illustration - Gatorade
    • Set Illustration - Dannon Kitchen
    • Hospitality - Yucca Valley - Canyoneer - In Progress
    • Landscape - Hancock Park
    • Multi Family - Studio City Apartment Interior
    • Residential - Westwanda Kitchen
    • Residential - Entenza House Addition
    • Set Illustration - Reese's
    • Set Illustration - Kay Jewelers
  • Services
  • Company
  • Blog
  • Contact
OEA
1801 Bellevue Ave
Los Angeles, CA, 90026
United States

/December 20, 2011 by Thomas DeVoss

acidadebranca:

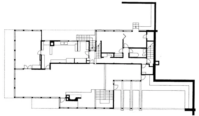
Black & White Plans
[575]
 
Richard Joseph Neutra. “Health House”, Villa for Philip Lovell in Los Angeles, 

California, 1927-1929

via

acidadebranca:

Black & White Plans

[575]

Richard Joseph Neutra. “Health House”, Villa for Philip Lovell in Los Angeles, 

California, 1927-1929

via

  Tags: los angeles, residential, plans
← →

Lorem ipsum dolor sit amet, consectetuer adipiscing elit, sed diam nonummy nibh euismod tincidunt ut laoreet dolore magna aliquam erat volutpat.


Latest Posts

There are no items to display from the selected collection.
  • architecture 702
  • modern 395
  • pool 342
  • green 308
  • wood 246
  • residential 242
  • garden 239
  • indoor-outdoor 238
  • green roof 231
  • los angeles 203
  • structural systems 201
  • ancient 195
  • urban planning 194
  • concrete 185
  • nature 185
  • waterfront 174
  • landscape 165
  • tropical 154
  • drawing 149
  • model 148
  • interiors 141
  • photography 141
  • glass 136
  • fantasy 131
  • light 127
  • water 127
  • diagram 112
  • art 107
  • skyscraper 101
  • roof 96
  • patio-deck 95
  • furniture 94
  • design 93
  • indoor outdoor 91
  • blends with nature 90
  • white 87
  • cabin 86
  • hill town 81
  • stairs 80
  • cosmic 77
  • transportation 75
  • plants 74
  • tree house 70
  • render 67
  • section 67
  • kitchen 66
  • bathroom 65
  • stone 64
  • plans 63
  • bridge 60